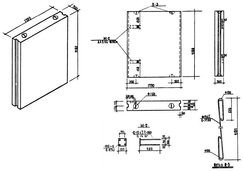
ВБ-18.22.3л

Чертеж изделия:
Чертеж ВБ-18.22.3л
Характеристики изделия:
ПараметрЗначение
Длина1790 мм
Ширина300 мм
Высота2180 мм
Масса2080 кг
Нормативный документСерия 1.134-1

ВБ-18.22.3л   Блоки внутренних стен вертикальные по Серии 1.134-1.