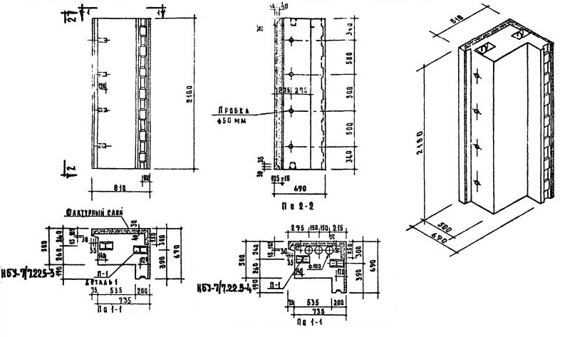
НБУ-7/7.22.5-4

Чертеж изделия:
Чертеж НБУ-7/7.22.5-4
Характеристики изделия:
ПараметрЗначение
Длина810 мм
Ширина690 мм
Высота2180 мм
Масса1675 кг
Нормативный документСерия 1.133-1

Стеновые легкобетонные блоки толщиной 50 см по Серии 1.133-1.

НБУ-7/7.22.5-4  Простеночный блок температурного шва.