НР5-64.27.35-5бл

Чертеж изделия:
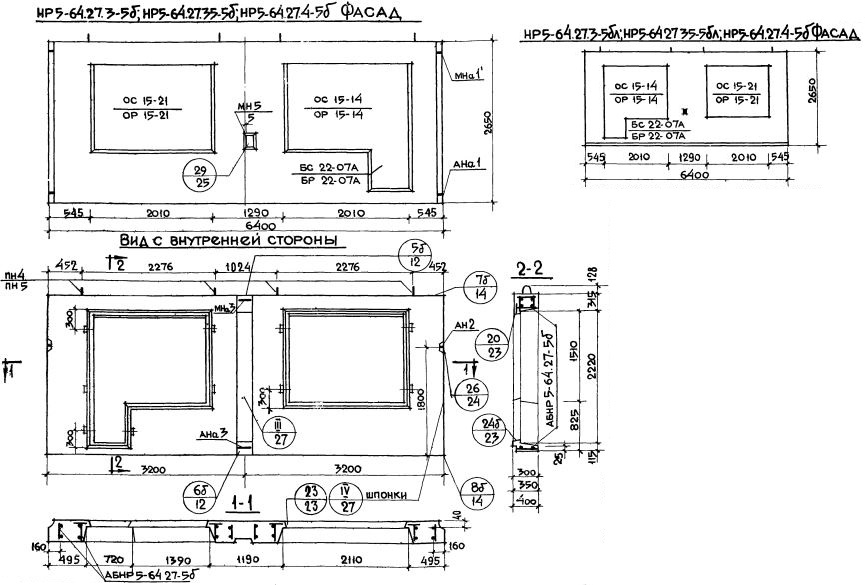
Характеристики изделия:
ПараметрЗначение
Длина6400 мм
Ширина350 мм
Высота2650 мм
Масса5480 кг
Нормативный документСерия 1.132-1
Цена:
Рассчитать стоимость

НР5-64.27.35-5бл   Наружная стеновая панель рядовая по Серии 1.132-1.